Wie kann ich meine 2D Grundrisse anpassen?

  • Aktualisiert

RoomSketcher Pro- und Team-Kunden haben Zugriff auf leistungsstarke Anpassungsoptionen für 2D Grundrisse. Diese Funktionen helfen Ihnen, Ihren Arbeitsablauf zu optimieren, Ihr Branding einheitlich zu halten und professionelle Grundrisse zu erstellen, die genau zu Ihren Anforderungen passen.

Dieser Übersichtsartikel zeigt alle Möglichkeiten, die Ihnen zur Verfügung stehen.

Dies sind nur einige Beispiele. Wenn Sie RoomSketcher geschäftlich nutzen, können Sie über diesen Link ein maßgeschneidertes Training mit einem unserer Experten buchen und Ihre Grundrisse genau so anzupassen, wie Sie es wünschen.

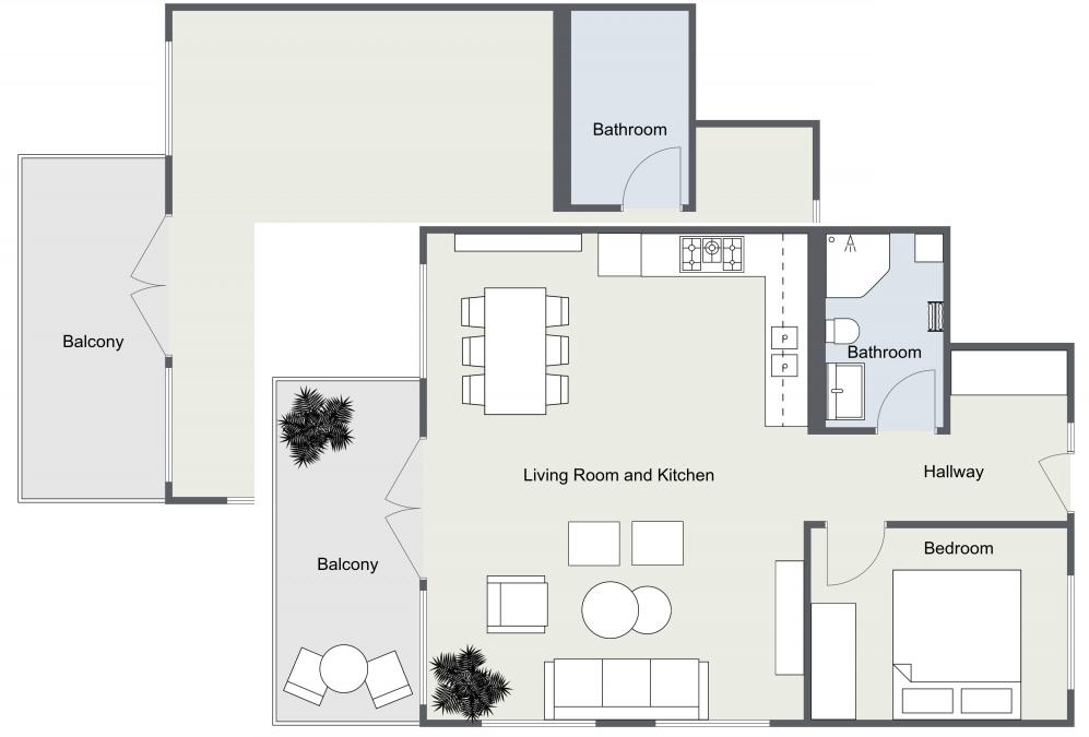
Ich möchte Raumnamen und Möbel anzeigen oder ausblenden

2D_profile_features_-_no_furniture_and_with_furniture.jpg

 

Mit nur wenigen Klicks können Sie bestimmen, was auf dem 2D Grundriss zu sehen ist.

  • Möbel ein- oder ausblenden
  • Raumnamen ein- oder ausblenden
  • Raumgröße in Quadratmetern anzeigen  

👉Lernen Sie, wie: Wählen Sie, was auf Ihrem Grundriss angezeigt wird

 

Ich möchte meine Grundrisse farbig gestalten

2D_Profile_Features_-_Item_fill_color_-_2D_Floor_Plan.jpg

 

Heben Sie Ihre Grundrisse mit individuellen Farben hervor:

  • Verwenden Sie Farben für verschiedenen Zimmer-Typen
  • Heben Sie Möbel oder Wände farblich hervor 

👉Lernen Sie, wie: Wählen Sie Farbe für Ihre Grundrisse

 

Ich möchte Räume mit Farbe oder Material hervorheben

2D_Profile_Features_-_material_-_2D_Floor_Plan.jpg

 

So können Sie Räume optisch voneinander abheben:

  • Wählen Sie Blau für Badezimmer und Gelb für Schlafzimmer
  • Zeigen Sie Bodenbeläge wie Parkett und Fliesen

👉Lernen Sie, wie: Farbe oder Material nach Zimmer-Typ auswählen

 

Ich möchte Grundrisse mit Maßen 

 

Zeigen Sie wichtige Maße direkt in Ihrem 2D Grundriss an:

  • Raumfläche in Quadratmetern
  • Innenbemaßungen
  • Außenwandlängen
  • Wohnflächenberechnung

👉Übersicht: Bemaßungen auf Grundrissen

 

Ich möchte mein Logo und einen Haftungsausschluss hinzufügen

Floorplan_letterhead_-_branded.jpg

 

Geben Sie Ihren Grundrissen einen professionellen Touch:

  • Fügen Sie Ihr Logo, einen eigenen Text oder einen Haftungsausschluss hinzu
  • Dieses Branding wird jedes Mal angezeigt wird, wenn Sie einen Grundriss erstellen

👉Lernen Sie, wie: Briefkopf anpassen und eigenes Logo hochladen

 

Ich möchte Grundrisse mit Kompass, Maßband und Beschriftung

2D_Floor_Plan_-_branded_-_with_helpers.jpg

 

Sie können ganz einfach grundlegende visuelle Hinweise zu Ihren Grundrissen hinzufügen:

  • Symbole wie einen Kompass oder einen Eingangspfeil
  • Möbelbeschriftungen und freier Text
  • ein Maßband und viele weitere Hilfselemente für zusätzliche Klarheit 

👉Lernen Sie, wie: Symbole, Text und Linien hinzufügen

 

Häufig gestellte Fragen (FAQ)

Kann ich farbige 2D Grundrisse mit einem kostenlosen RoomSketcher Konto erstellen?
Nein, die Funktionen zur Anpassung der 2D Grundrisse sind nur für Pro- und Team-Kunden verfügbar.

Ist es möglich, nur die Wände zu zeigen, ohne Möbel oder Raumnamen?
Ja, Sie können Möbel, Text, und Maße ausblenden, um einen sauberen Grundriss zu erstellen, der nur Wände, Fenster und Türen zeigt.

Wird mein Logo automatisch auf allen meinen Grundrissen angezeigt?
Ja. Sobald Sie Ihr Logo hochgeladen haben, erscheint es jedes Mal, wenn Sie einen Grundriss als Briefkopf herunterladen oder drucken.
War dieser Beitrag hilfreich?

Haben Sie Fragen? Anfrage einreichen