2D Grundrisse – Farbe oder Material nach Zimmer-Typ auswählen

  • Aktualisiert

Möchten Sie alle Badezimmer in blau und alle Schlafzimmer in gelb anzeigen? Oder unterschiedliche Bodenmaterialien wie Parkett oder Fliesen darstellen? RoomSketcher Pro- und Team-Kunden können für jeden Raumtyp in ihrem Grundriss ein Material oder eine Bodenfarbe auswählen. 
 

Wo finde ich die Optionen für Raummaterialien und -farben?

Sie steuern, welche Zimmer-Typen welches Material oder welche Farbe erhalten soll in Styles im RoomSketcher Web Portal.

Folgen Sie diesen Schritten:

  1. Melden Sie sich in Ihrem Web Portal an. 
  2. Klicken Sie im linken Menü auf Styles.
  3. Scrollen Sie nach unten zu Grundrisse und klicken auf 2D Grundrisse.
  4. Klicken Sie auf Raummaterialien
  5. Legen Sie das gewünschte Material oder die gewünschte Farbe für die verschiedenen Zimmer-Typen fest und klicken Sie auf Speichern

    styles - 2d grundrisse raummaterialien.png

Ihre Einstellungen werden in Ihrem Style gespeichert und jedes Mal angewendet, wenn Sie einen 2D Grundriss erstellen.

 

RoomSketcher 2D Floor Plan (8).jpg
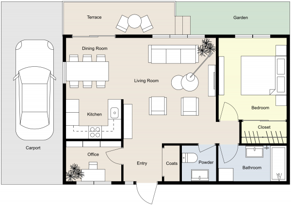
2D Grundriss mit verschiedenem Material.
RoomSketcher 2D Floor Plan (5).jpg
2D Grundriss mit verschiedenen Farben.

 

Wie bekommt mein 2D Grundriss die ausgewählten Materialien oder Farben?

Nachdem Sie die Materialien oder Farben für verschiedene Zimmer-Typen im Web Portal festgelegt haben, müssen in der RoomSketcher App Zimmer-Typen zuweisen. 

Folgen Sie diesen Schritten:

  1. Öffnen Sie ein Projekt in der RoomSketcher App. Wechseln Sie in den Wand Modus und wählen Sie einen Raum aus.
  2. Wählen Sie rechts unter Zimmer-Typ das entsprechende Zimmer aus.

    room type_de_02.png
     
  3. Generieren Sie den 2D Grundriss. 

Tipp: Lassen Sie sich eine Vorschau Ihres 2D Grundrisses anzeigen, um zu sehen, wie der Grundriss mit den gewählten Profil Einstellungen aussehen wird.

War dieser Beitrag hilfreich?

Haben Sie Fragen? Anfrage einreichen